Works
Competitions
About
Contact
Works
Competitions
About
Contact
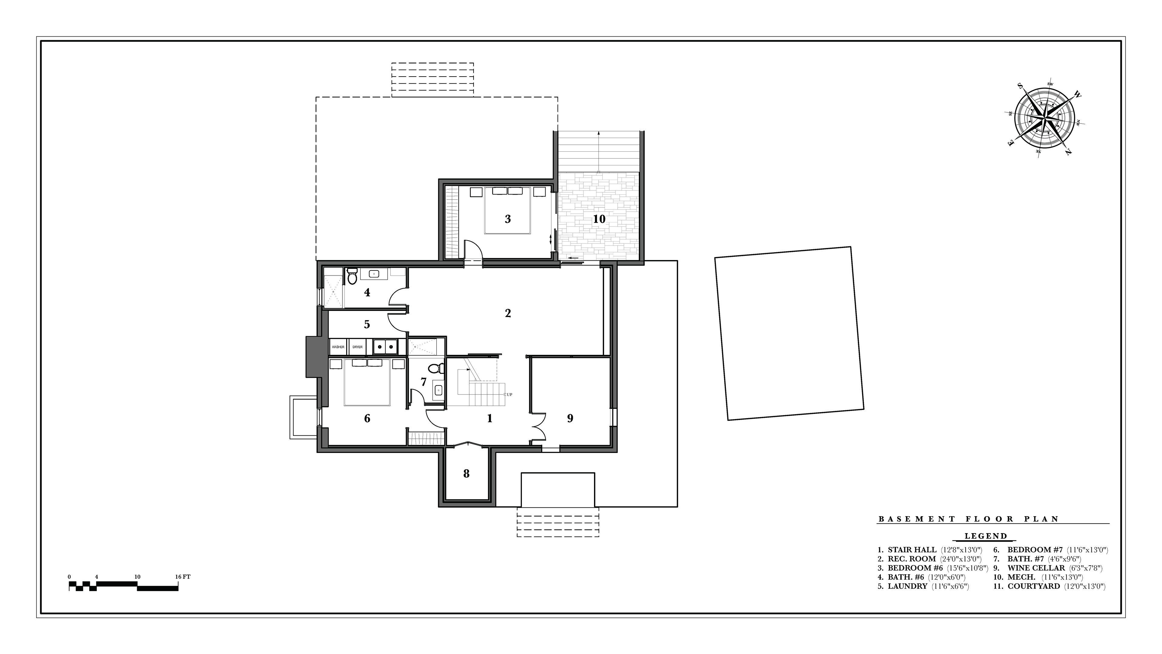
SOUTHAMPTON VILLAGE HOUSE
Renovations and Additions to Existing House
// Completed //
You may also like
UPPER 7
2023
ISLAND BEACH HOUSE
2020
BAY VIEW
2025
EAST MARION HOUSE
2023
OCEAN MODERN RETREAT
2022
↑
Back to Top