Works
Competitions
About
Contact
Works
Competitions
About
Contact
Esra Ozcan Architecture

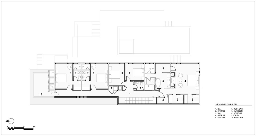
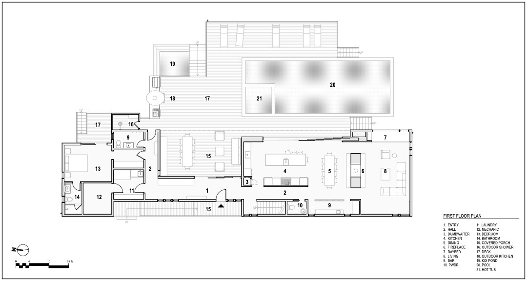
BAY VIEW

New Construction
Sag Harbor, New York
// In Progress  //

You may also like

OCEAN MODERN RETREAT
2022
ISLAND BEACH HOUSE
2020
SOUTHAMPTON VILLAGE HOUSE
2023
EAST MARION HOUSE
2023
UPPER 7
2023
↑Back to Top
Powered by Adobe Portfolio